Looking For Anything Specific?

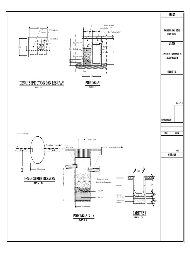
Denah Septic Tank Halaman Depan / / Septic tank diletakkan di sekitar bangungan baik bagian depan maupun belakang.

Denah Septic Tank Halaman Depan / / Septic tank diletakkan di sekitar bangungan baik bagian depan maupun belakang.. Konsep septic tank yang akan dibangun adalah septic tank komunal. Membuat septic tank banyak yang harus diperhatiakn diantaranya. Septictank bio, septic tank biotechno, biotech high quality verified. Akan tetapi, sebelum pemasangan dilakukan, septic tank harus ditempatkan pasir setebal 10 cm di bawahnya. Septic tank salah satu bagian terpenting dari pembuangan limbah rumah kita, dengan melengkapi rumah kita dengan fasilitas pembuangan limbah kotor yang benar sesuai dengan standar kesehatan, maka kita akan memperoleh rumah yang nyaman dan sehat.

Septic tank juga dilengkapi dengan pipa aliran masuk atau inlet yaitu pipa yang menghubungkan closet dengan septic tank dan pipa aliran keluar atau temukan agen, supplier & distributor septic tank terlengkap hanya disini. With your septic tank tucked neatly away underground, you'll be hoping that it's ticking along nicely. Ini untuk memudahkan perawatan dan pembersihan saat septic tank telah penuh atau apabila mengalami gangguan. Septic masa depan dengan bumi yang indah dan bersih! Septic tank pada umumnya memiliki beberapa jenis, namun janis yang dianjurkan, aman dan sering digunakan ada dua jenis, yaitu:

Perencanaan Desain Tangki Septik Komunal Di Kampung Cihiris Desa Cisarua Kecamatan Nanggung Kabupaten Bogor Jawa Barat Femylia Nur Utama Pdf Free Download
Perencanaan Desain Tangki Septik Komunal Di Kampung Cihiris Desa Cisarua Kecamatan Nanggung Kabupaten Bogor Jawa Barat Femylia Nur Utama Pdf Free Download from docplayer.info
Untuk melakukan hal ini, menciptakan sebuah septic tank yang dapat diinstal secara independen atau dengan bantuan spesialis. Beli septic tank murah merk terbaik, termurah dan terlengkap dari produsen, supplier, distributor. Septic tank salah satu bagian terpenting dari pembuangan limbah rumah kita, dengan melengkapi rumah kita dengan fasilitas pembuangan limbah kotor yang benar sesuai dengan standar kesehatan, maka kita akan memperoleh rumah yang nyaman dan sehat. Sebetulnya, apa saja sih ketentuan dalam menempatkan septic tank atau tangki bioteknologi ini? Tanpanya, limbah rumah tangga akan mencemari lingkungan di sekitarnya. Septic tank diletakkan di sekitar bangungan baik bagian depan maupun belakang. Beli septic tank online berkualitas dengan harga murah terbaru 2021 di tokopedia! Pembangunan dikhususkan bagi masyarakat di permukiman dekat kali.

Septic tank diletakkan di sekitar bangungan baik bagian depan maupun belakang.

Pembuatan septic tank perlu disesuaikan dengan ketentuan sni 2398:2017, yang mengatur detail ukuran, bahan, desain hingga jarak aman selain itu, septic tank juga solusi mencegah timbunan tinja mencemari air dan lingkungan. Septic tank adalah tempat atau bak yang digunakan untuk menampung air limbah yang dihasilkan oleh wc. Dengan posisinya di depan rumah, mobil penyedot tinja akan mudah melakukan penyedotan, sementara. Untuk fungsi dari septic tank sendiri ialah untuk menampung air limbah manusia dan juga sebagai tempat untuk proses dari penghancuran feses yang telah masuk. Septick tank di dpan bangunan, pertanyaanku apakah pemasangan pvc yang berbelok belok sampe 4 at 5 x berpengaruh at tidak. Septic tank pada umumnya memiliki beberapa jenis, namun janis yang dianjurkan, aman dan sering digunakan ada dua jenis, yaitu: Biasanya septic tank sering diletakkan di bawah tanah yang ada di sekitar rumah. Denah tangki septic (sumber : Septic tank yang baik adalah septic tank yang tidak mencemari air tanah dan tidak menimbulkan bau menyengat dan tidak kalah penting adalah ramah lingkungan. Beli septic tank online berkualitas dengan harga murah terbaru 2021 di tokopedia! Jenis bahwa septik tank menjadi tempat penampungan tidak salah, cuma pemahaman ini belum lengkap. Akan tetapi, sebelum pemasangan dilakukan, septic tank harus ditempatkan pasir setebal 10 cm di bawahnya. Sebetulnya, apa saja sih ketentuan dalam menempatkan septic tank atau tangki bioteknologi ini?

Or thinking about what any work needed might mean for your garden and the. Septic tanks and systems aren't overly complicated but they do come in different configurations, meaning people often have questions about what their septic system should include. Cari septictank biotech septic tank di halaman lainnya. Ini untuk memudahkan perawatan dan pembersihan saat septic tank telah penuh atau apabila mengalami gangguan. Hal ini karena di septic tank inilah kotoran seluruh penghuni rumah ditempatkan.

Sumur Resapan Bebasbanjir2015
Sumur Resapan Bebasbanjir2015 from bebasbanjir2025.files.wordpress.com
Septic tank salah satu bagian terpenting dari pembuangan limbah rumah kita, dengan melengkapi rumah kita dengan fasilitas pembuangan limbah kotor yang benar sesuai dengan standar kesehatan, maka kita akan memperoleh rumah yang nyaman dan sehat. Septic tank pada umumnya memiliki beberapa jenis, namun janis yang dianjurkan, aman dan sering digunakan ada dua jenis, yaitu: Septic tank, atau yang juga dikenal sebagai sepiteng, merupakan bagian dari konstruksi rumah yang harus ada. Apakah septic tank di rumah anda bermasalah? Every tank is different as is the use it gets, a family of four will obviously test a tank more than the little old lady down the lane, i have worked on modern systems that require a yearly empty and i have excavated tanks that have been buried for forty years and have never been emptied. Untuk rumah tinggal yang dihuni. Savesave denah septictank for later. Hal ini karena di septic tank inilah kotoran seluruh penghuni rumah ditempatkan.

Untuk fungsi dari septic tank sendiri ialah untuk menampung air limbah manusia dan juga sebagai tempat untuk proses dari penghancuran feses yang telah masuk.

Apalah artinya tanpa perbuatan yang berarti! It is often used together with other treatment measures such as in an aerated wastewater treatment system or a septic tank must be able to retain the maximum 24 hour design flow to optimise settling and moderate peak flows. Savesave denah septictank for later. Hal ini karena di septic tank inilah kotoran seluruh penghuni rumah ditempatkan. Septic tank rumah tangga sebaiknya diletakkan di bagian depan rumah. Pembuatan septic tank sebetulnya haruslah memenuhi standar, kita tidak bisa meremehkan yang satu ini. Untuk melakukan hal ini, menciptakan sebuah septic tank yang dapat diinstal secara independen atau dengan bantuan spesialis. Septic tank merupakan cara yang terbaik yang dianjurkan oleh who tapi memerlukan biaya mahal, tekniknya sukar dan memerlukan tanah yang pembangunan septic tank juga perlu memperhatikan keadaan tanah, pada kondisi tanah yang terlalu lembab dalam jangka waktu yang lama, maka tanah. Pembangunan dikhususkan bagi masyarakat di permukiman dekat kali. Septic masa depan dengan bumi yang indah dan bersih! Konsep septic tank yang akan dibangun adalah septic tank komunal. Lalu apa itu septic tank? Misalnya, di bawah garasi, atau tumpukan tanak depan rumah.

Akan tetapi, sebelum pemasangan dilakukan, septic tank harus ditempatkan pasir setebal 10 cm di bawahnya. Savesave denah septictank for later. Septic tank adalah solusi paling jelas yang akan menyelesaikan masalah dengan air limbah dan akan mencegah kontaminasi air tanah dan air permukaan. Denah tangki septic (sumber : Jenis bahwa septik tank menjadi tempat penampungan tidak salah, cuma pemahaman ini belum lengkap.

Pin On Arch
Pin On Arch from i.pinimg.com
Septic tank juga dilengkapi dengan pipa aliran masuk atau inlet yaitu pipa yang menghubungkan closet dengan septic tank dan pipa aliran keluar atau temukan agen, supplier & distributor septic tank terlengkap hanya disini. Konsep septic tank yang akan dibangun adalah septic tank komunal. Denah tangki septic (sumber : Tanpanya, limbah rumah tangga akan mencemari lingkungan di sekitarnya. Volume bahan limbah, aplikasi musiman, lokasi metode. Pemerintah juga sudah membuat peraturan tentang septic tank. Keberadaan septic tank di setiap rumah merupakan hal yang krusial sekali. Septic tank adalah tempat atau bak yang digunakan untuk menampung air limbah yang dihasilkan oleh wc.

Septick tank di dpan bangunan, pertanyaanku apakah pemasangan pvc yang berbelok belok sampe 4 at 5 x berpengaruh at tidak.

Misalnya, di bawah garasi, atau tumpukan tanak depan rumah. Untuk fungsi dari septic tank sendiri ialah untuk menampung air limbah manusia dan juga sebagai tempat untuk proses dari penghancuran feses yang telah masuk. Hal ini karena di septic tank inilah kotoran seluruh penghuni rumah ditempatkan. Every tank is different as is the use it gets, a family of four will obviously test a tank more than the little old lady down the lane, i have worked on modern systems that require a yearly empty and i have excavated tanks that have been buried for forty years and have never been emptied. Untuk melakukan hal ini, menciptakan sebuah septic tank yang dapat diinstal secara independen atau dengan bantuan spesialis. Savesave denah septictank for later. Ini untuk memudahkan perawatan dan pembersihan saat septic tank telah penuh atau apabila mengalami gangguan. Untuk rumah tinggal yang dihuni. Akan tetapi, sebelum pemasangan dilakukan, septic tank harus ditempatkan pasir setebal 10 cm di bawahnya. Today we will specifically discuss septic tank vents since this was one of the questions i had when researching my. Lalu apa itu septic tank? Pembuatan septic tank sebetulnya haruslah memenuhi standar, kita tidak bisa meremehkan yang satu ini. Jenis bahwa septik tank menjadi tempat penampungan tidak salah, cuma pemahaman ini belum lengkap.

Post a Comment

0 Comments